Naar hoofdinhoud
Naar footer
Naar zoekveld
Translate
Zoeken
Zoeken
Zoeken
Naar homepage
...
Wonen en leefomgeving
Projecten
Huis Mandala
Ontwerp
Lees voor
Ontwerp Huis Mandala
Definitief ontwerp van Huis Mandala. Klik op de afbeeldingen om ze te vergroten.
(png
, 393 KB
)
Situatie 1:500
(png
, 214 KB
)
Situatie 1:200
(png
, 114 KB
)
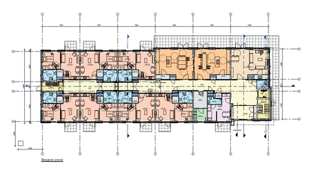
Begane grond
(png
, 110 KB
)
1e verdieping
(png
, 105 KB
)
Doorsnedes
(png
, 758 KB
)
Straatgevel
(png
, 540 KB
)
Tuingevel
(png
, 457 KB
)
Kopgevels
(png
, 1 MB
)
Emmaweg zuidoost
(png
, 1 MB
)
Emmaweg zuidwest
(png
, 1 MB
)
Tuin noordwest
(png
, 1 MB
)
Tuinzicht noordoost
Scroll naar boven naar het begin van de paginainhoud